Mât de capture avec conducteur HVI

Pour une longueur utile maximale de l'ensemble du système de capture de 8,5 m.
La fixation s’effectue au moyen de 3 supports variables (réf. 105 345).

Le mât de capture démontable se compose de :
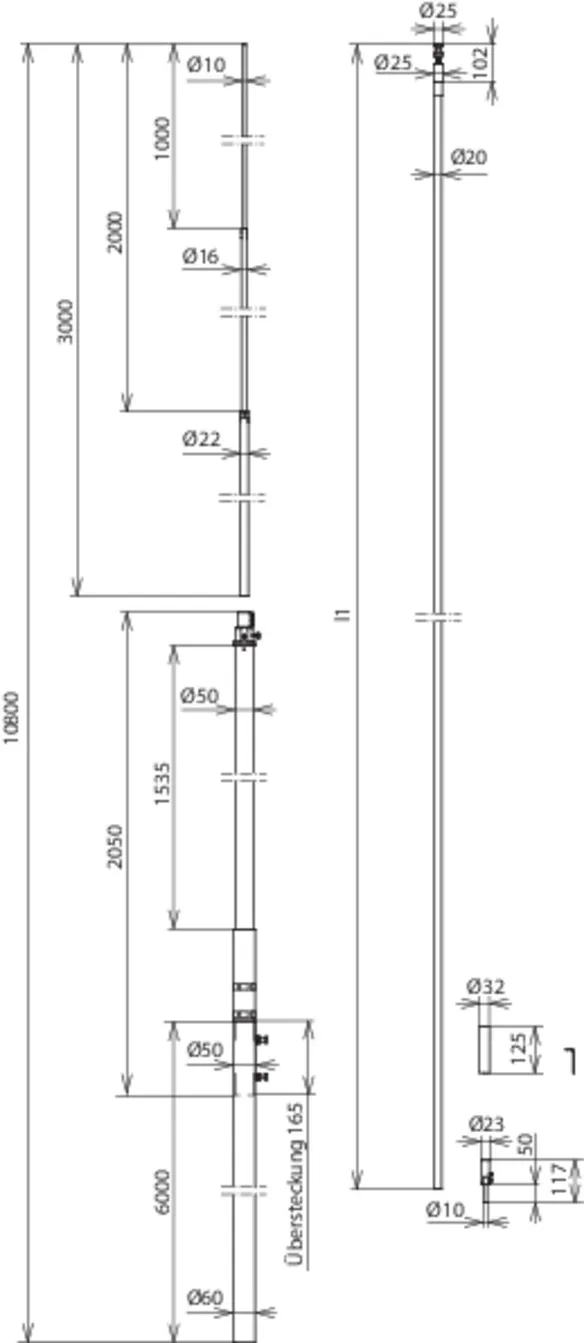
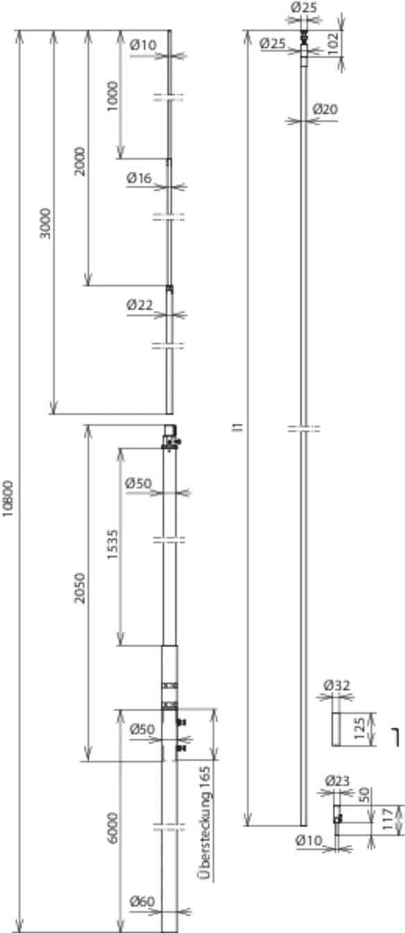
– Pointe de capture en Al de section Ø22/ 10 mm, longueur 30 mm
– Tube support en PRV/Al Ø50 / 60 mm, longueur 2100 mm (recouvrement 200 mm)
– Tube en St/tZn Ø60 mm, longueur 6000 mm avec vis d’arrêt M10 en INOX
– Conducteur HVI monté intérieurement
– Longueur de transport 6000 mm

Version avec 1x conducteur HVI posé à l'intérieur. Veuillez indiquer la longueur du conducteur lors de la commande (tranches de 0,5 m).

Longueur maximale du conducteur HVI : 12,5 m pour un niveau de protection contre la foudre NPF : II
Longueur maximale du conducteur HVI : 18,5 m pour un niveau de protection contre la foudre NPF : III

1 Produit

Référence de la pièce 819730 FM 60 L11M IP HVI M L10M GFK AL STTZN

GTIN 4013364243477, Clients tariffs no (UE): 85389099, Poids brut: 53.54 kg, Prix unitaire: 1.00 pièce(s)

Précédent

Images

Plus d'informations

Mâts de capture avec conducteur HVI
Mâts de capture avec conducteur HVI
Mise à la terre isolée résistante aux hautes tensions
pour respecter la distance de séparation
par rapport aux pièces conductrices
selon DIN EN 62305-3 (VDE 0185-305-3)
Spécialement conçu pour une utilisation par. ex pour les fermenteurs ou
les réservoirs de gaz des installations à biogaz
selon la classe de protection II du système de protection contre la foudre.
Les mâts de capture sont dimensionnés selon
Eurocode 1 (DIN EN 1991-1-4 + DIN EN 1991-1-4/NA).
Le dispositif de capture est composé de :
-tige de capture aluminium Ø22/16/10 mm Longueur 3000 mm
-tube support PRV/aluminium Ø50/60 mm
-tube de mât St/tZn Ø60 mm
plus
3 pièces de supports variables (référence 105 345)
longueur libre maximale du dispositif de capture entier de 8,5 m.
version avec 1x conducteur HVI posé à l’intérieur,
longueur minimale de commande 10,0 m.
Les autres longueurs de câblage requises pour le conducteur HVI
doivent être commandées séparément.
Longueur totale maximale des conducteurs HVI (LPS II) 12,5 m.
Longueur totale maximale des conducteurs HVI (LPS III) 18,5 m.
Mât de capture total: 10800 mm
Longueur - pointe de capture: 3000 mm
Longueur - tube support: 2100 mm
Longueur - tube: 6000 mm
Diamètre Ø - conducteur: 20 mm
Couleur - conducteur: noir ●
Matériau - conducteur: Cu
Commande min.: 10 m
Vitesse de vent/rafales max.: (longueur libre max. 8500 mm, 1x HVI intérieur) 156 km/h
Norme: DIN IEC/TS 62561-8 (VDE V 0185-561-8)

produit : DEHN
Type: FM 60 L11M IP HVI M L10M GFK AL STTZN
Référence: 819730
ou équivalent

Certificats

 

Caractéristiques techniques

Mât de capture total 10800 mm
Longueur - pointe de capture 3000 mm
Longueur - tube support 2100 mm
Longueur - tube 6000 mm
Couleur - conducteur noir ●
Commande min. 10 m
Norme DIN IEC/TS 62561-8 (VDE V 0185-561-8)

Le produit 819730 a été ajouté au bloc-notes

Le produit 819730 a été ajouté au panier.


back to top